Lands End Residential.

Residential Renovation, Sidney British Columbia

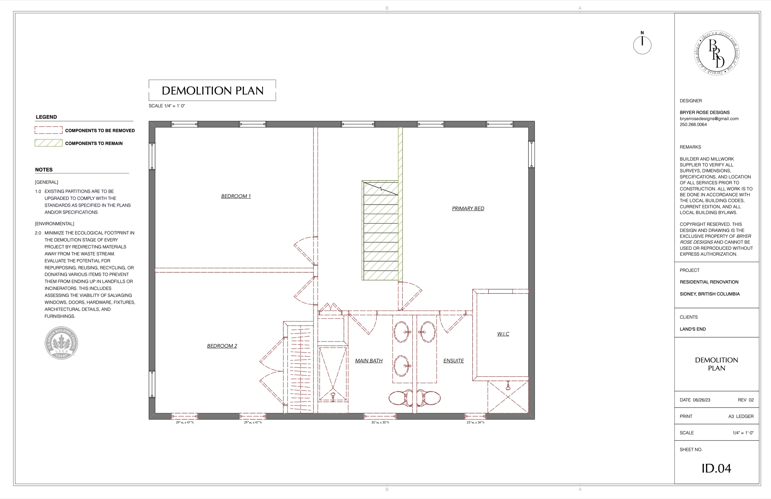
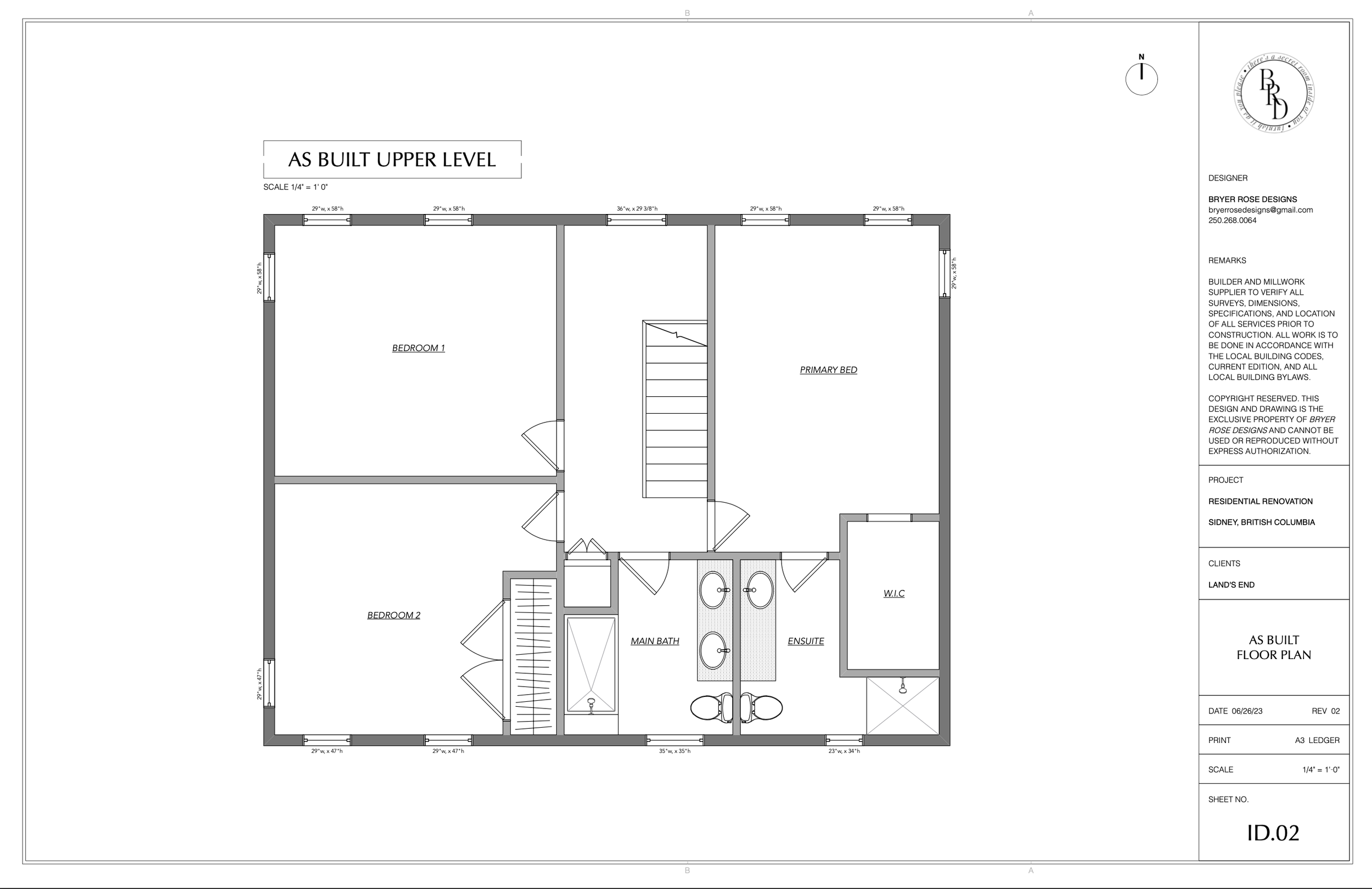
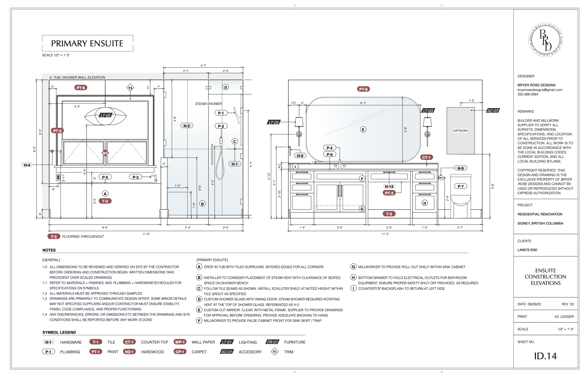
Land’s End, a charming coastal residence, recently underwent a transformative upgrade on its 800 sq.ft upper level to create a more functional living space. The fully redesigned layout features three bedrooms, two bathrooms, an expansive walk-in closet, and a cozy reading nook.