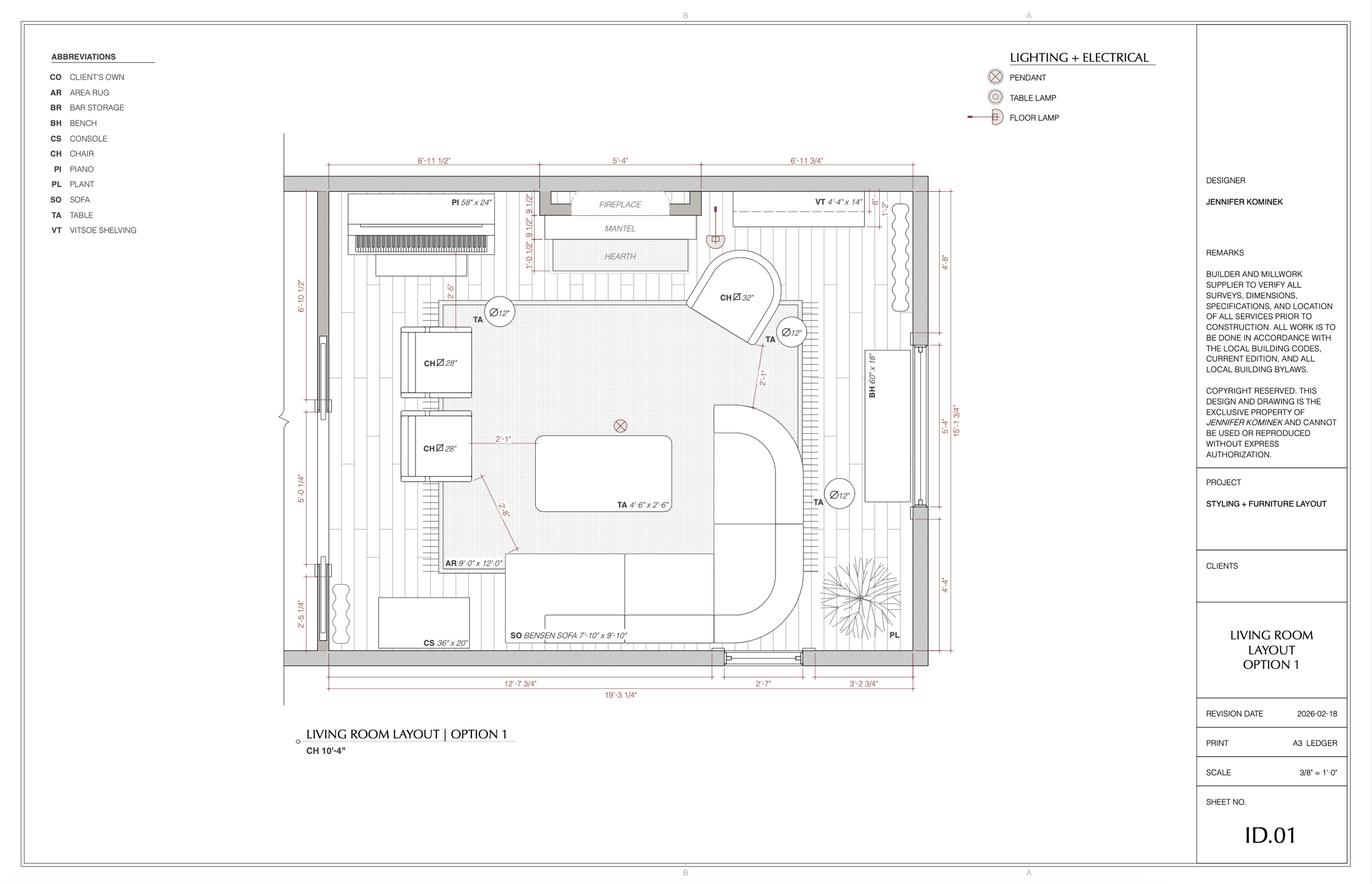
New Heritage. Furniture Layouts + Conceptual Renderings
Drawings By: Bryer Rose
Design + Styling By: Jennifer Kominek
Drawings By: Bryer Rose
Design + Styling By: Jennifer Kominek