Vaughn New Build.

Space Planning, Ladysmith British Columbia

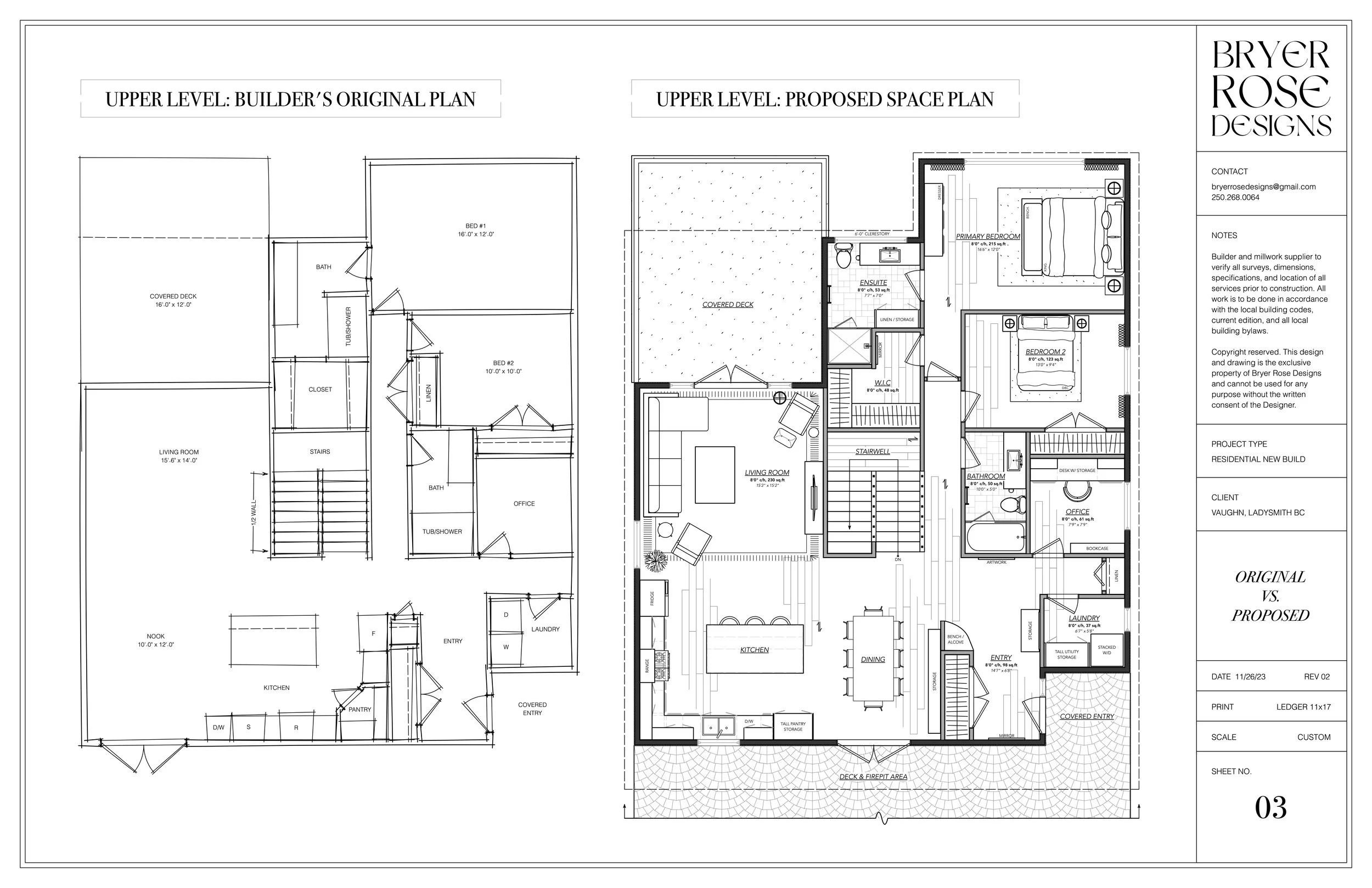
Observe the power of thoughtful space planning! The Vaughn residence serves as a perfect example of how we’ve implemented subtle, yet powerful modifications to builder's plans. Guaranteeing versatility in furniture layouts, optimal storage solutions, and seamless flow and functionality. Special attention was given to the lower live-in suite for Rachelle’s parents, prioritizing their comfort, lifestyle and a smooth transition to make them feel truly at home in their new space.

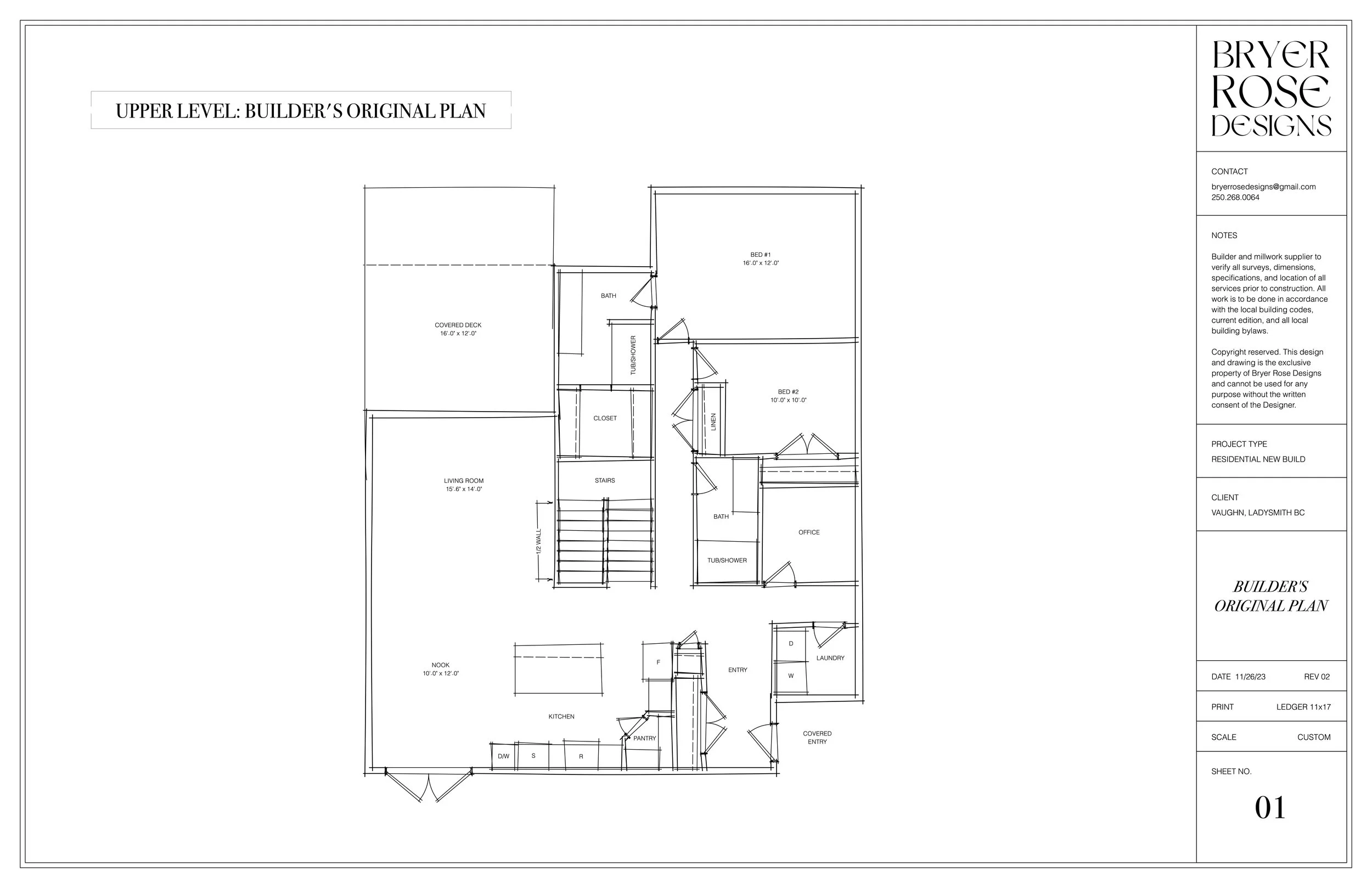
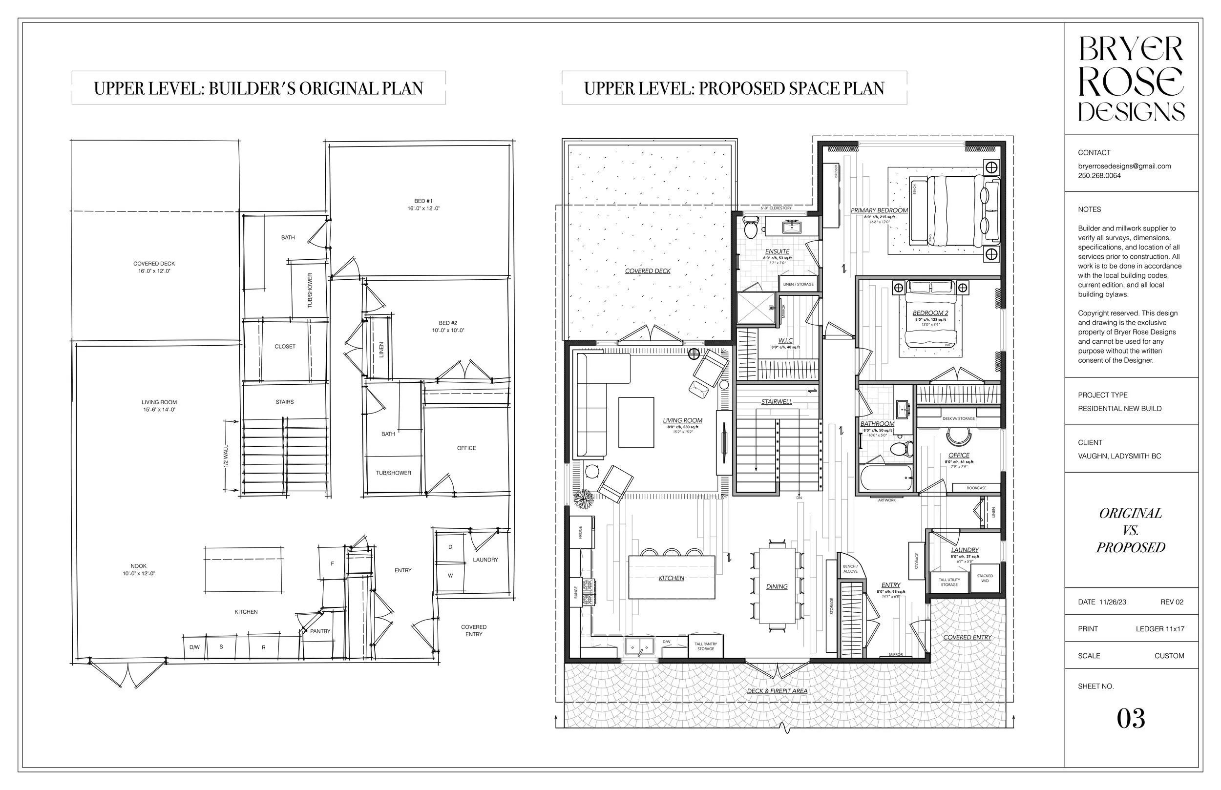
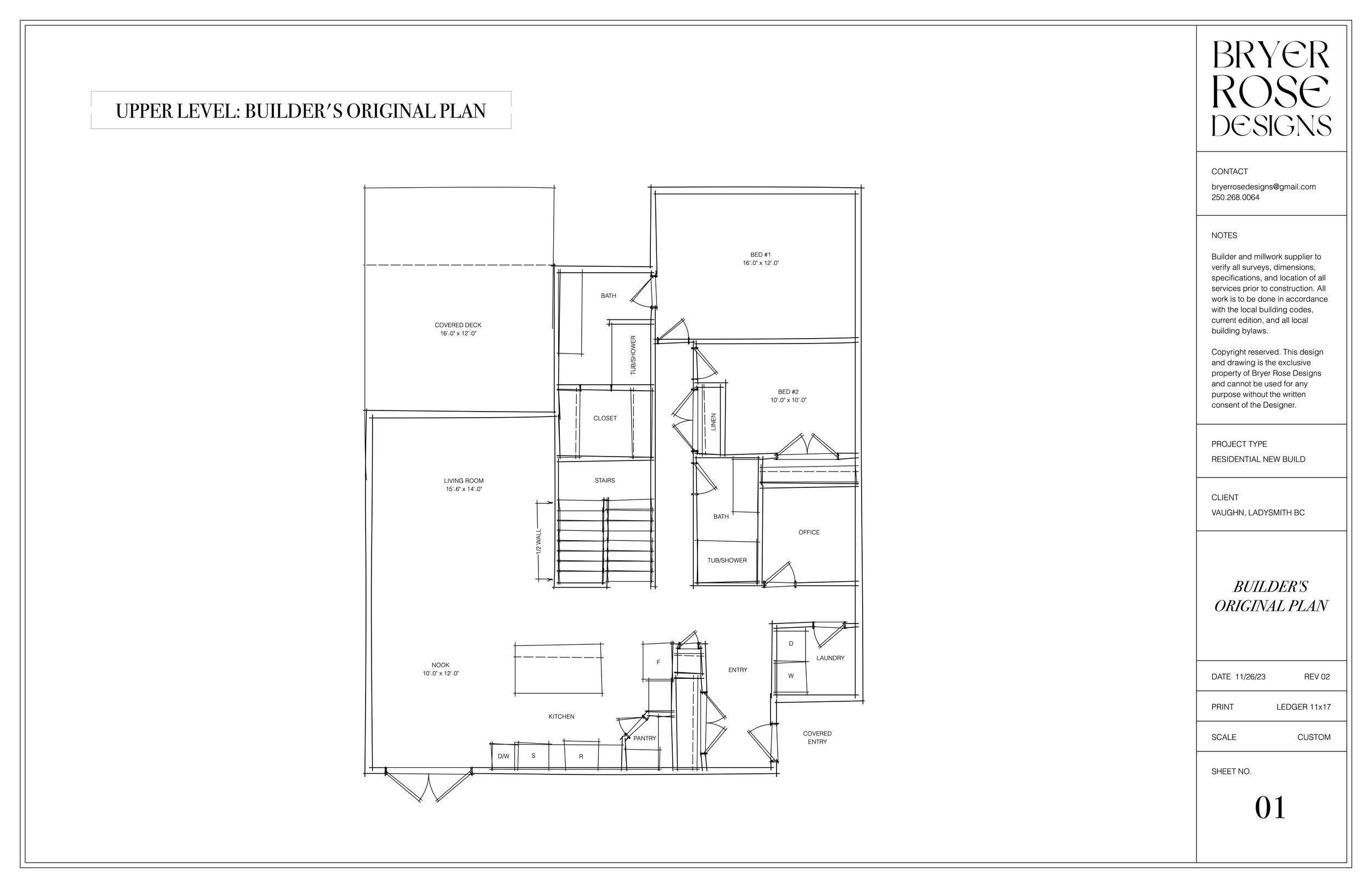
Architectural blueprint of the upper level of a residential building, showing rooms, stairs, closets, and outdoor deck. The plan includes labels for bedrooms, bathrooms, office, kitchen, laundry, and entry areas.
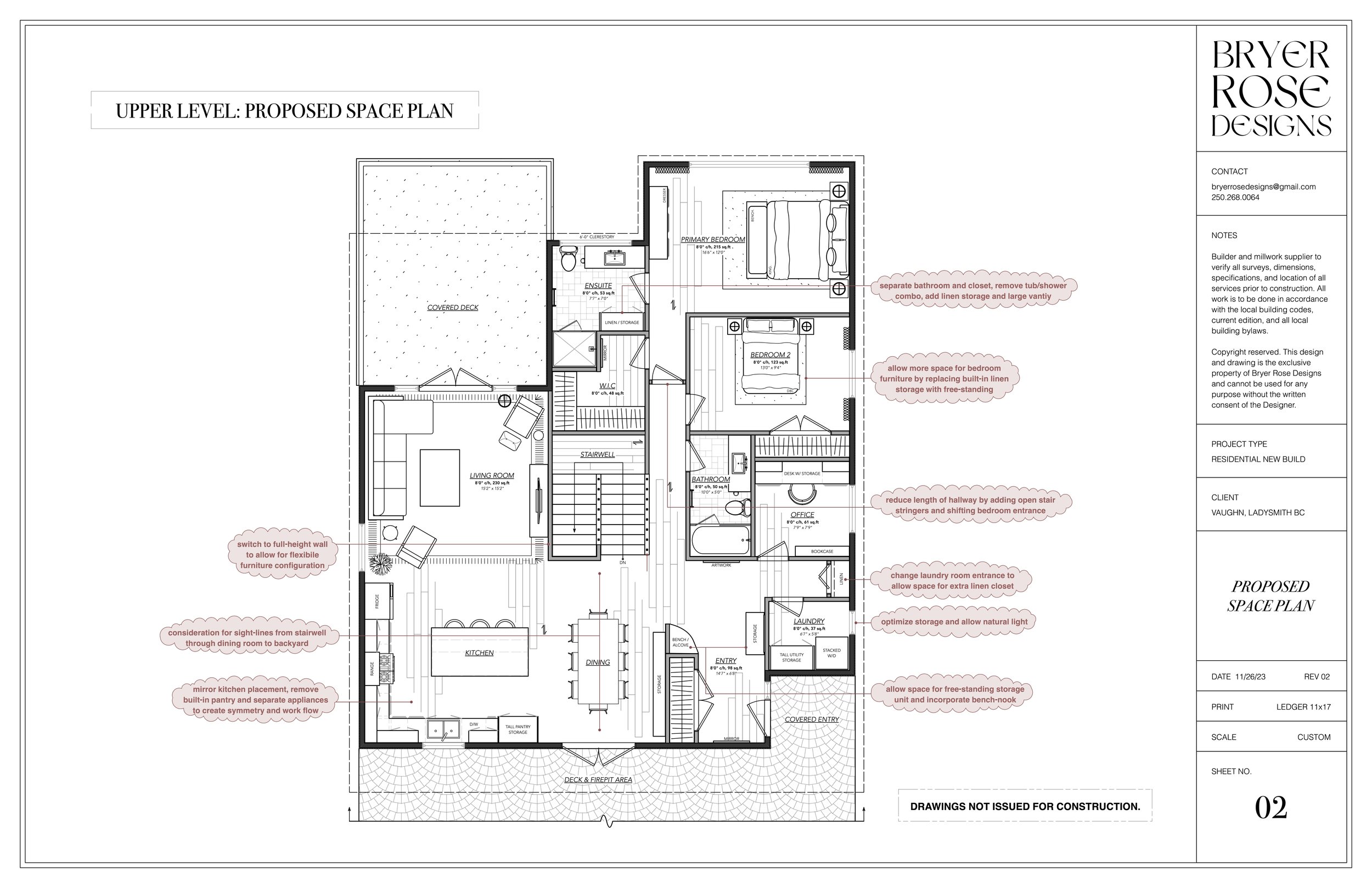
Architectural floor plan of an upper level proposed space, including a living room, kitchen, dining area, laundry room, two bedrooms, two bathrooms, and a covered deck. Annotations suggest design modifications like removing built-in linen storage, shifting bedroom entrance, and improving storage and natural light.
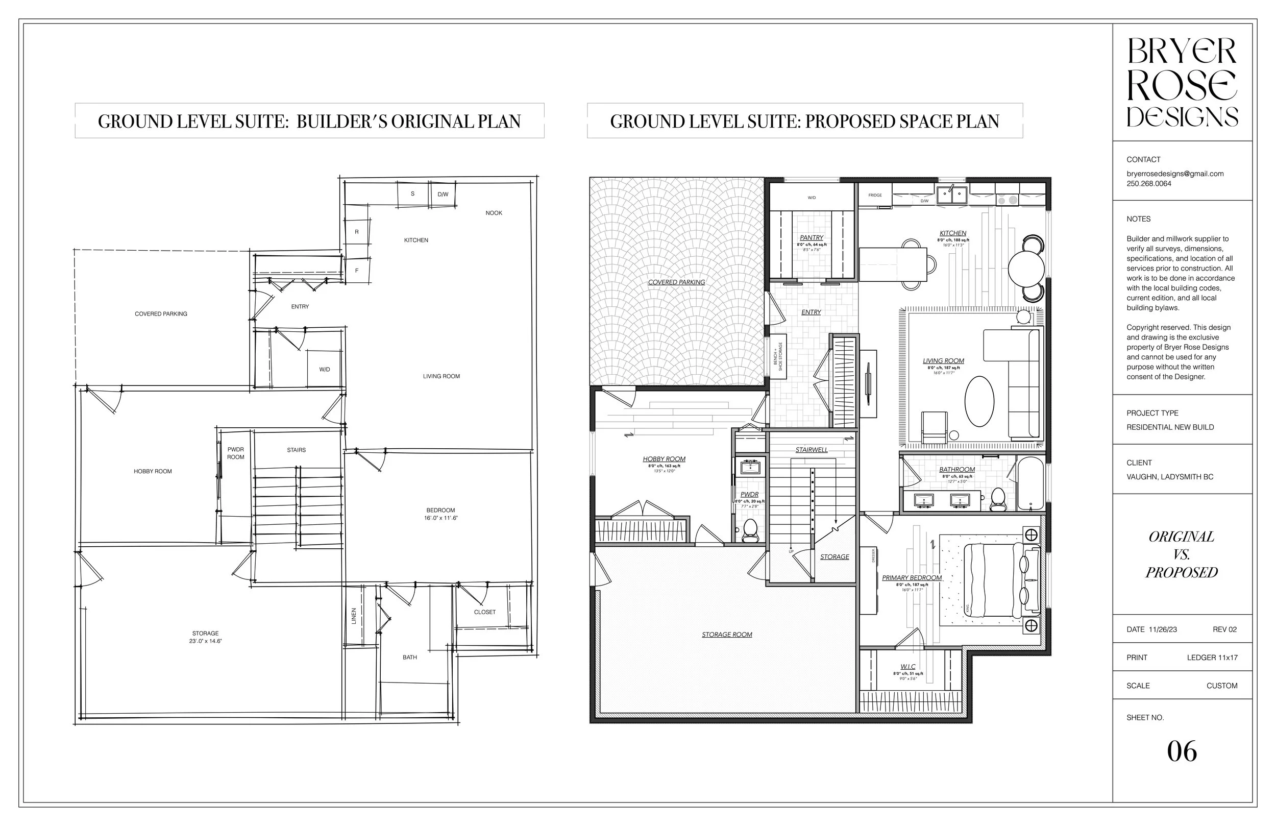
Architectural plans comparing the original builder's floor plan with the proposed space plan for a residential building, including layouts for living areas, bedrooms, bathrooms, kitchen, office, laundry, deck, and entry.
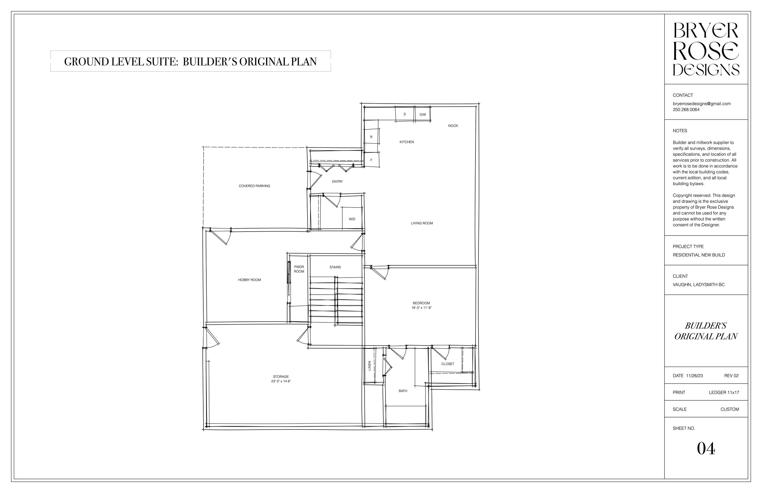
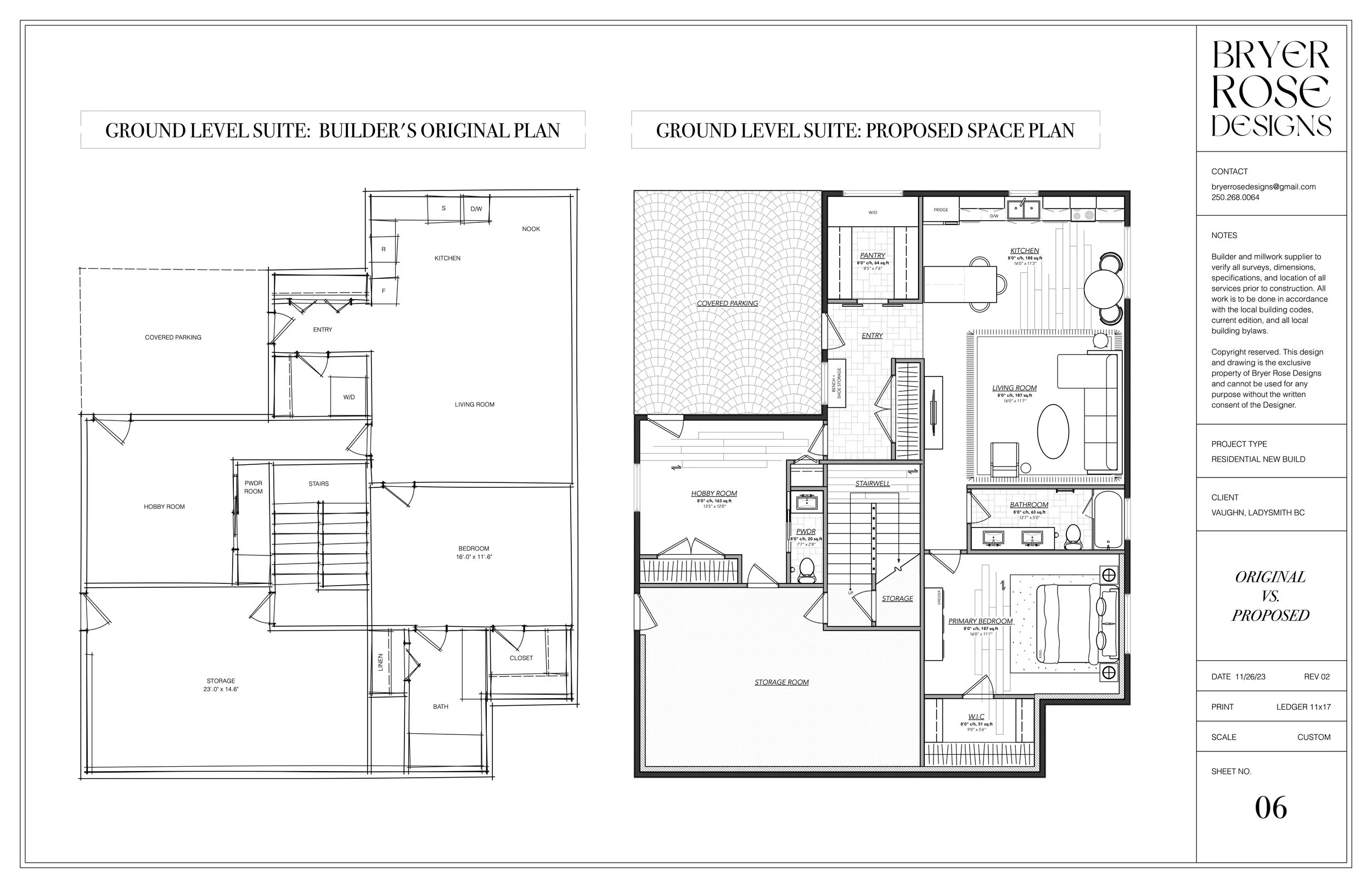
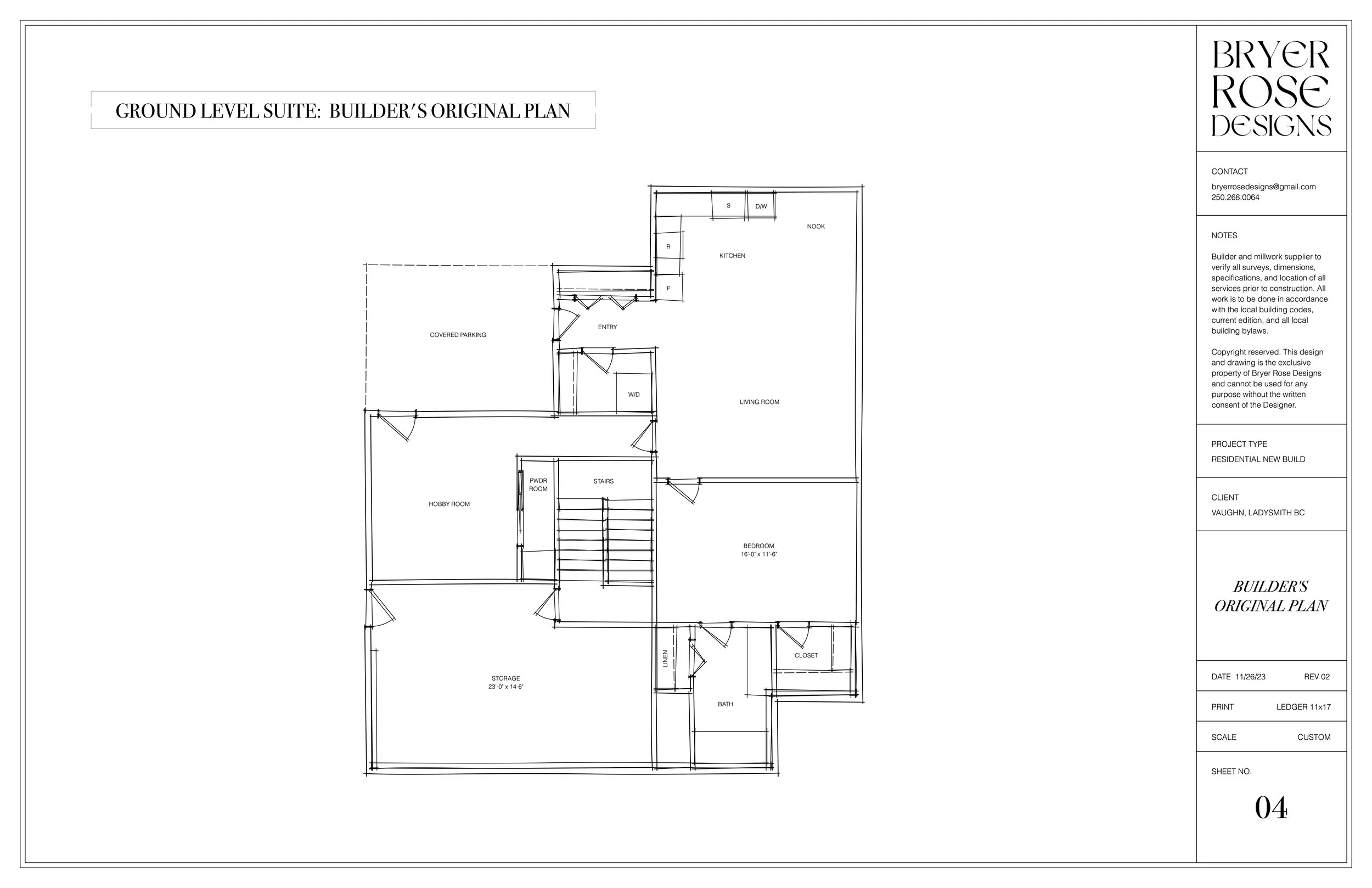
Architectural floor plan of a ground level residential home. Rooms include a storage area, bedroom, bath, laundry, stairs, powder room, hobby room, living room, kitchen, and covered parking, with dimensions and layout details.
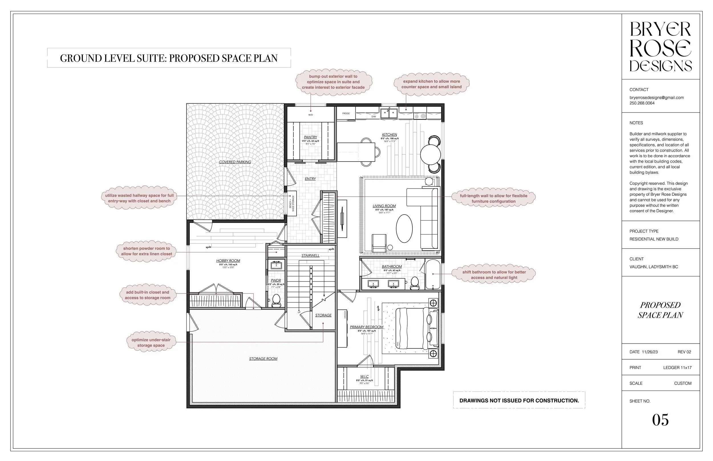
Ground level proposed space plan for a residential building, showing layout of rooms including entry, kitchen, living room, bathroom, primary bedroom, hobby room, storage, and pantry, with notes about space optimization and layout suggestions.
Architectural blueprint comparing original and proposed ground level plans for a house, including labeled rooms, parking, storage, and stairs.